Jesi li ti naš novi Majstor-bravar?

Riješi kviz i saznaj čeka li te bolji posao kod nas!
Mjesto rada:
Radoboj
KRENI NA PITANJA

Prosječno trajanje kviza: do 2 minute

Podijeli s prijateljima:

🔧🛠️ Dundo-promet d.o.o. je tvrtka smještena u Radoboju, specijalizirana za proizvodnju metalnih proizvoda koristeći najsuvremenije tehnologije poput laserskog rezanja, CNC savijanja, zavarivanja i strojne obrade. PROČITAJ VIŠE

1

Imaš li završeno obrazovanje tehničkog usmjerenja? Obavezno

2

Koje zadatke možeš samostalno obavljati? Obavezno
(💡Odaberi zadatke koje možeš samostalno obavljati bez nadzora)

3

Što od dolje navedenog bi najbolje opisalo tvoje vještine na radnom mjestu Majstor-bravar? Obavezno

4

S kojim vrstama materijala si se susreo? Obavezno
( 💡Moguć višestruki izbor)

5

Zadatak! Očitaj vrijednost prikazanu na pomičnom mjerilu. Obavezno

6

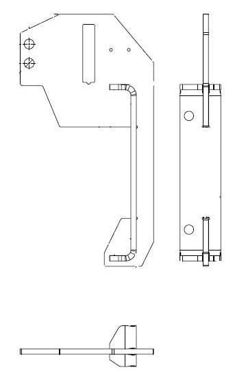
Koji položaj sklopa je ispravan prema nacrtu? Obavezno

7

Na tehničkom crtežu prikazana je tolerancija za promjer 16 (+0,2 / +0,1). Izmjerena vrijednost je 16,05 mm. Je li ta dimenzija unutar dozvoljenog tolerancijskog polja? Obavezno

8

Prepoznaj vrstu zavara prema skici: Obavezno

9

Za dodatan Plus 👉🏻Kako bi zavario označeni zavar na 👆🏻gronjem nacrtu?

10

Koji je ispravan redoslijed pripreme sklopa kao na skici? Obavezno

11

Koji alat se najčešće koristi za skidanje oštrih rubova nakon rezanja? Obavezno

12

Koja je glavna zadaća bravara pri pripremi za zavarivanje? Obavezno

13

Koji alat se najčešće koristi za privremeno pridržavanje dijelova prije zavarivanja pripoja? Obavezno

14

Što je najvažnije kod čitanja tehničkog crteža? Obavezno

15

Radno mjesto nalazi se u 📍Radoboju. Odgovara li ti lokacija? Obavezno

16

Kad najranije možeš početi raditi kod nas? Obavezno
(💡Ako imaš otkazni rok u sadašnjoj tvrtki, označi kada možeš početi raditi. Ako nemaš, početak rada može biti odmah)

17

Koji iznos neto primanja bi te potaknuo da postaneš dio našeg tima?
(💡Neto primanja su iznos koji sjeda na tvoj račun)

18

Imaš li spreman životopis? Obavezno

19

Ako već imaš spreman životopis, ovdje ga slobodno uploadaj za dodatnu prednost.
(💡Nije obavezno, ali je veliki plus)

20

Ime i prezime Obavezno
E-mail Obavezno
Kontakt broj Obavezno
Grad

Copyright © 2023-2025, Adverbilla. Sva prava pridržana.